Ricerca rapida
-
-
CERCA

Lignano Sabbiadoro (Lignano Riviera)
Trilocale Lignano Riviera

Appartamento

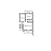
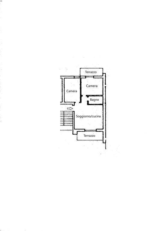
A Lignano Riviera, a pochi passi dal mare ed immerso nel verde, proponiamo bicamere in condominio ben tenuto. L'immobile si trova al terzo ed ultimo piano (senza ascensore), ed è composto da ingresso sul soggiorno con angolo cottura esposto a sud con accesso diretto ad un terrazzo di buone dimensioni, due camere da letto, una matrimoniale con terrazzo privato ed una che attualmente è dotata di letto singolo (ma con possibilità di mettere un secondo letto oppure un letto a castello). L'appartamento ben tenuto necessità comunque di una rivisitazione.
Posto auto all'interno del grande cortile condominiale.

Per info e visite 340 0607386 Andrea Filippi

Caratteristiche

Codice
A118
Prezzo
165.000,00 EUR
Spese condominiali
630,00 EUR
Mq
55
Classe
VA
Locali
3
Camere
2
Stato Immobile
Come da Origini
Grado
Medio
Posizione
Mare
Raffrescamento
Split
Richiedi informazioni
Codice:
Nominativo: *
Telefono: *
Email: *
Dettagli richiesta: *
Autorizzo il trattamento dei miei dati personali in base Regolamento UE n. 679/2016 - Privacy Policy
Invia
Cookie preference